项目名称 | 鸿墅·公园悦府
方案设计 | 无锡紫苹果别墅设计
面 积 | 150㎡
-1F
The Basement
▽平面设计

随着地下室防水防潮、通风、采光等措施的完善以及智能家居系统的普及,别墅的地下室也就不止储藏室这一个选择了。
从车库入户比一层入户频率更高更方便。
设计师将鸿墅负二层规划出卫生间,品茗区,影音区。
鸿墅地下室具有隐秘性,外来光线干扰小,同时也有很好的隔音效果,浪漫幽静的氛围,是打造家庭私人影院的理想空间。
开放式的品茗区,适合家庭间彼此的沟通与交流,也可以与三五好友谈谈心,聊聊天,一起坐下来分享趣事。
▽设计意向图



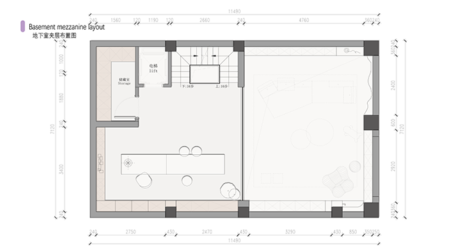
夹层

设计师将鸿墅原先负二层的挑高,现浇了一半的面积变成夹层,但保留了原先负二层影音区的一个挑空部分。
利用现浇的隔层,空间规划了一个开放式“书房”
疫情之下,居家办公成为了常态,安静的空间更有助于居者思想与创造力集中,在沉浸与放松之中,一家人可以在这里读书、学习和工作。
▽设计意向图




1F
The First Floor

鸿墅一层开放式的厨房、餐厅、客厅相连。
厨房使用了隐藏门,可以将门隐藏在墙内,增加空间的通透感。超大圆桌的餐厅,非常适合家人,朋友聚餐,大气又实用。
L型的沙发,前方空缺出来的一块区域,可以看着孩子们在前面玩耍,增加了交流感和家人陪伴带来的亲密感。
▽设计意向图



2F
The Second Floor
▽平面设计方案一

二层为主要的居住空间,两间单独的房间,南边卧室进行扩建,增加了面积,让空间变得更宽阔。
北边的卧室,在有限的空间做了合理的收纳。
▽平面设计方案二

第二版的方案,将原本的挑高空间,通过现浇隔层,充分利用空间,设计了一间卧室。
两件卧室均为套房,配备内卫,不仅方便了居者起居生活,也提供了更为宽敞的休息空间。
在两个房间出来的位置,设计了一个起居室,可以看看书籍,看看电影的小天地。
▽平面设计方案三

第三版的方案,也是将原本的挑高空间,通过现浇隔层,充分利用空间,设计了三间卧室,保留了原本的露台空间,可以在露台上养养花,也可以摆上家具,独处在自己的空间内。
▽设计意向图



3F
The Third Floor
▽平面设计

鸿墅三楼为业主的独卧空间,一整个套房的设计,开门就是衣帽间,与卧室还隔着一道推门,里面还配备着卫生间。
扩建露台,这块区域,也可做成阳光房,里面放上家具,与朋友一起喝喝茶恰谈恰谈。
▽设计意向图




最新文章
紫苹果声明:
Copyright 2020 www.wxzpg.com All Rights Reserved. 苏ICP备18037275号-2
苏公网安备32021302002167 上海紫苹果装饰有限公司无锡第一分公司版权所有
紫苹果国际设计-品质赢得口碑